Property Details

48 Patina Point SW
Calgary (A2272836)

$460,000
3
2+1
1,460 ft²
Note: This property may have a conditional offer. Talk to us for details.
Loading Listing...

Loan Term
Interest Rate
Loan Amount
Annual Tax
Ann. Insurance

* Amounts are estimates only. Final payment amounts may vary.

Description

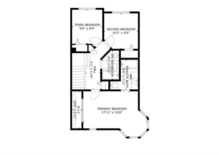
Perched on top of Broadcast Hill in Patterson, this amazing townhouse overlooks the city, and the view is hard to beat! At 1460ft2, this freshly painted end unit has 3 bedrooms, 2.5 bathrooms, a wrap-around front balcony with city view, a rear composite deck with no neighbours behind and a huge double-attached, tandem, heated garage! The interior features new stainless-steel appliances, heated floors in the kitchen, immaculate hardwood on the main, and a gas fireplace. The kitchen is a great size, and the laundry is conveniently situated on the main level. Upstairs you’ll find the primary bedroom, with a 4-pc ensuite bathroom and more city views! The other 2 bedrooms are good sized and could be used for kids, guests or as an office. The mechanical is all up to date as well, with a new Central A/C unit and a high efficient furnace, you can focus on getting the aesthetics exactly how you want them. The home is tucked away, you’ll have no traffic coming by your front door, and the privacy of being on the edge of the complex siding onto walking paths and open space in front and behind the unit. Patterson is such a great location with quick access to Stoney Trail and Downtown, it’s another reason why west is best, and we’d love to accommodate your showing needs. Book to come see it today, you’ll be glad you did.

Property details

Basic Info

MLS® #
A2272836
Property Type:
Residential
Subtype:
Row/Townhouse
Subdivision:
Patterson
Price
$460,000
Sale/Lease:
For Sale
Size:
1,460 sq.ft.
Bedrooms:
3
Bathrooms:
2 full / 1 half
Year Built:
1994 (31 years old)

Building Info

Structure Type:
Five Plus
Building Style:
2 Storey
Garage:
Yes
Parking:
Double Garage Attached, Heated Garage, Tandem
Basement:
No
Features:
Natural Woodwork, No Animal Home, No Smoking Home
Fireplaces:
1
Inclusions:
n/a
Appliances:
Central Air Conditioner, Dishwasher, Electric Range, Garage Control(s), Microwave, Range Hood, Refrigerator, Washer/Dryer, Window Coverings
Laundry:
Main Level
Exterior Features:
Other
Patio/Porch Features:
Balcony(s), Deck

Neighborhood Info

Nearby Amenities:
Park, Playground, Schools Nearby, Shopping Nearby, Sidewalks, Street Lights, Tennis Court(s), Walking/Bike Paths

Condo/Association Info

Condo Type:
Conventional Condo
Condo Amenities:
Snow Removal, Trash, Visitor Parking
Condo Fee:
$360
Condo Fee Includes:
Amenities of HOA/Condo, Common Area Maintenance, Maintenance Grounds, Professional Management, Reserve Fund Contributions, Snow Removal, Trash
Pets Allowed:
Yes

Lot / Land Info

Lot Features:
Landscaped, No Neighbours Behind, Views
Zoning:
M-C1 d50

Materials & Systems

Roof:
Asphalt Shingle
Exterior:
Wood Frame
Floors:
Carpet, Ceramic Tile, Hardwood
Foundation:
Poured Concrete
Heating:
Forced Air, Natural Gas
Cooling:
Central Air
Amenities:
Park, Playground, Schools Nearby, Shopping Nearby, Sidewalks, Street Lights, Tennis Court(s), Walking/Bike Paths

Listing Info

Possession:
60 Days / Neg
Days on Market:
2
Your Agent
  • Joshua Boyne

    780-978-5674

    Email

    Ask About This Property
    • This site is protected by reCAPTCHA and the Google Privacy Policy and Terms of Service apply.
    Share This Listing
    Related Properties

    Mortgage Calculator
    Loan Term
    Interest Rate
    Loan Amount
    Annual Tax
    Ann. Insurance

    * Amounts are estimates only. Final payment amounts may vary.